西山南巷42号 交警队后面 养身1楼 2室1厅1卫 送杂物间

37.00
2室1厅
1层/共4层
南北
普通
72.00平米
小区名称 西山南巷42号
所在区域 秀峰区   秀峰 
看房时间 可看时间请咨询经纪人
房源编号 CSGO2309121738002
我是该小区成交达人,熟悉本房周边信息
13977326141
随时查看新房源

房源基本信息

基本属性
  • 房屋户型2室1厅1卫
  • 所在楼层1层 (共4层)
  • 建筑面积72.00㎡
  • 户型结构
  • 房屋朝向南北
  • 装修情况普通
  • 房屋年代1994
  • 房屋产权产权
特别提示:本房源所示信息仅供参考,购房时请以该房屋档案登记信息、产权证信息以及所签订合同条款约定为准;本房源公示信息不做为合同条款,不具有合同约束力。

本房源特色

房源特色

此房源照片

查看更多图片
客厅 1/5
风险提示:

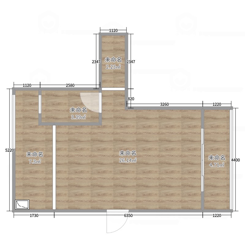
本网呈现的户型图为参考户型图,其中户型结构及使用面积并非按国家标准进行的测绘专业活动取得,可能与真实现状存在差异,仅供参考,请以产权证明或专业机构测量结果为准。

房贷计算器

选择基本情况,帮您快速计算房贷

  1. 房价总额
  2. 贷款金额
    7成
  3. 贷款类型
    商业贷款
  4. 贷款期限
    30年(360期)
  5. 商贷利率
    最新基准利率(4.9%)
  6. 公积金利率
    最新基准利率(3.25%)
    1. 最新基准利率85折(2.7625%)
    2. 最新基准利率9折(2.925%)
    3. 最新基准利率95折(3.0875%)
    4. 最新基准利率(3.25%)
    5. 最新基准利率1.1倍(3.575%)
    6. 最新基准利率1.2倍(3.9%)
    7. 最新基准利率1.3倍(4.225%)

等额本息

等额本金

  • 首付

    0 万元

    这里是根据您的输入计算的首付。具体首付随您的所在城市、个人信贷、房源情况有所不同。结合实际情况,建议您咨询顾问。

  • 月供

    0

  • 首月后每月递减 0
  • 还款月数

    0

  • 还款总额

    0 万元

  • 总利息

    0 万元

  • 本息总计

    0 万元

注:本次计算仅作为购房参考,结合实际情况了解更精确首付、贷款方案,建议咨询专业顾问

  • 公交
  • 地铁
  • 医院
  • 银行
  • 休闲娱乐
  • 购物
  • 餐饮
  • 运动健身
公交

为您推荐优质房源

优选新房

我有房子要卖
  • 不知道如何定价
    每天超过30000次估价请求量
    我要估价 >
  • 把房源委托给居联邦
    10万+专业经纪人·线上千万级浏览量
    发布房源 >
  • 关注居联邦公众号
    第一时间了解楼市动态
    关注我们 > 关注居联邦公众号